壁とっぱらってリビング広めに、和室は洋室に、絨毯はフローリングにって、オーダー多すぎ!【PR】
こちらは近鉄 伊勢田駅近くのマンションの一室。

リビングに面して2部屋。
あると助かるけど、
やや圧迫感が…。

今は洋室にしたい気分。
部屋数を維持しつつ、リビング広めでそれぞれのお部屋を使い勝手良くしたいなぁ。
そんなときは、
『キュートくーーーん!』

「僕の出番だよぉ!!」
フォワードBHLにおまかせ!!
キュートくんはフォワードBHLのマスコットキャラクターで、給湯器の妖精です。

枚方市桜丘町にある水回りに強いリフォーム会社!
▶公式サイト

(クリックで枚方つーしん内の記事一覧へ)
これまで姉妹サイトの枚方つーしんに何度も登場している、水回りを得意としている会社です。

給湯器の交換、キッチン・トイレ・お風呂のリフォーム、そして、照明やお家全体のリフォームも手がけています。
地域密着型のリフォーム会社なので、親身になって相談に乗ってくれてお家の悩みを解決してくれますよっ!
▶電話:0120-075-901
▶営業時間 9:00〜18:00
YouTubeもチェック↓
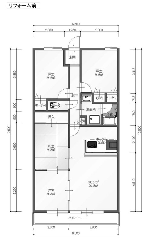
まず、どんなお家なのかBeforeをチェック
図面を見てみましょう↓
リビングは広め。他に4部屋あって、4人家族でもゆったり暮らせる間取り。

こちらは玄関。みんなが歩いたであろう廊下は細かい傷が多くて、傷んでいる様子。
鍵を置いたりするような棚付きシューズクローク。便利なんだけど存在感がありすぎる?!
こちらは洋室1。
向かいの洋室2。どちらともカーペットや壁紙の色が澱んでいて、ちょっと暗い印象も。
お風呂場はかなり古びた感じ。蛇口が2箇所にあったり、微妙な棚の位置も気になる。
お手洗いは比較的キレイですが、壁紙や床はやっぱり汚れています。
メインのお部屋を見てましょう↓
入って左側にキッチン。か〜ら〜のぉ…
リビング!陽も入って、ここから見ると広々としています。だ・け・ど、
キッチンを囲む壁がなかったら、もっと広く感じるハズ!
リビングに面した洋室もあったら助かるけど、ガッツリ仕切るとちょっと圧迫感が。
洋室と和室は襖で仕切られています。
和室には広めの押入れ付き。う〜ん、2部屋あるのはいいんだけど、それぞれが壁で仕切られてないから、個人のお部屋としては使い勝手がイマイチ…。
音とか気になっちゃうもんね〜。
部屋数が多くて収納もあるのですが、スペースの取り方がなんだかイマイチ。
こちらの一室を、使い勝手◎で今どきな雰囲気にチェーーンジ!
玄関にあった鍵置き場の棚部分、結構スペースあるんですね(驚)
このスペースに何ができるかは、お楽しみ!

全室、フローリングや壁紙(もちろん天井も)を剥がして、新しいものを貼り付けていきます。


豪快!!
ストレス発散で破壊しているわけではなく、壁を取り除く作業です。
それにしても、これだけの作業がマンションでも可能なんですね!
今回は稀に見る大工事だったんだ〜。
もちろん他のお部屋の方に配慮して作業してるよぉ。
豪快に壊しまくったお部屋たち、一体、どんな風に変わったんでしょうか?!
ここまでで早速お問合せしたい方はコチラ↓
Afterを見てみよう
では、早速大きく変わったところから見てみましょうっ!
その前に図面をチェック!

オーダー通り部屋数は同じで和室が洋室になっていますね!
では詳しく見ていきましょう!ワクワク!!
▶Before
こ・れ・が…↓↓↓↓
▶After

開・放・感、あるぅ〜〜!!仕切りをオシャレなガラス扉に変えることで、圧迫感がなくなりました。
洋室にも照明が付いています。ヨガをやったり本棚を置いて読書ゾーンにしたり、いろいろ使えるね♪
キッチン周りの壁も取っ払われて、お部屋全体に奥行きが出ました!キッチンからの見通しももちろん◎

左側の広い壁をアクセントクロスにすることで、トレンド感アップ♡

ダイニングには新たに収納棚も設けています!
ウッディな床は天然のオークを使用。重厚感がありますよね!きちんとマンション用の防音性能があるんですよ。
同じフローリングでもだいぶ印象が違うよね!
天然木材で黒い節の部分をそのまま使っていて、カッコいい〜!

えぇ感じでしょ〜!
フォワードのスタッフも驚きの仕上がりだったよぉ!他も細かく見てみよう。
▶Before
▶After
壁を取って開放感アップ!光が入り込んで明るい雰囲気になりました。
後方に設けた食器棚は収納力◎

広くて作業しやすいキッチンカウンターは、親子でクッキングも楽しめちゃいます。
食器棚はやっぱりある方がいいよねぇ。
食器だけじゃなくって、お菓子とかカップ麺とかも置けるし。
次はリビングに面した2部屋も見てみましょう↓
アクセントクロスがオシャレな洋室。スライド式のガラス扉にすることで段差もなく、リビングに続いているようで広く感じます♪
隣の和室にはエアコンが取り付けられないので、洋室から冷暖房の空気が流れるように窓を設けています。
以前はこちらの洋室と隣の和室が襖で仕切られていましたが、壁で仕切ることで独立した空間に。
その隣の和室だったところを見てみましょう。
▶Before
▶After
ナチュラルな雰囲気の洋室に!
収納スペースは奥行きも高さもあって、大容量〜!このお部屋はリビングに近くて便利だから、ベッドを置いて主寝室にしてもいいねっ♪
その他の2部屋もチェック!
こちらは洋室1。
こちらは洋室2。床の絨毯をフローリングにして、壁紙の色を部屋ごとに変えて違う印象に
洗面室もピッカピカ〜!
フロート付きのカウンター洗面化粧台は収納力も◎
あの古めかしいバスルームは…
ひと回り大きなユニットバスに!浴室内も広々スッキリ〜!全身鏡があって、シャンプーなどを置いておけるちょっとした棚もあります。
浴槽は長さ120センチから140センチに!広くなったので足が伸ばせますね。バスタイムが楽しくなりそう♪

トイレもフローリング、便器、壁紙、全て新しいものに取り替えています。
他にも…
廊下も新しくフローリング&壁紙を貼り替えて、
入って右側にあった存在感のある鍵置き場は大容量のシューズクロークに変身!!
お〜!マンションの一室まるっと今どきな雰囲気に生まれ変わったね!
きっと、住み心地もバッチリだよぉ!!
同じようにハイツやマンションにお住まいの方、全部!とはいかなくても、部分的に参考にしてみては〜\(^o^)/工事内容↓
◇商品と工事内容 【全室】 ・フロアー張り替え 天然突き板、LL-45防音フロアー朝日ウッドテックライブナチュラル ・全てのドアの取り替え(クローゼット扉含む)10ヶ所 ・全室クロス、窓枠の取り替え 【キッチン】 ・システムキッチンの取り替え ・カップボードの新設 食洗機付きオープンタイプ リクシルシステムキッチンシエラ 家電収納付きカップボード1665m/m 【玄関】 ・シューズクローク新設 【洗面所、浴室】 ・ユニットバス パナソニック浴室暖房乾燥機付き1416サイズ ・カウンター洗面台 パナソニック 900m/m 【トイレ】 便器取り替え リクシルアメージュZ ウォシュレット付き便器 【その他】 ・間取り変更に伴うコンセント・電源の変更電気工事 ・照明器具の位置変更に伴う電源工事、照明器具取り付け工事 以上、工事の定価は消費税別です。 室内のテーブルやソファーなど家具類は含んでおりません。
丁寧、早い、うまい!フォワードBHLのリフォーム
フォワードBHLのリフォーム工事は丁寧で早いんです!出来るだけ早く、快適に生活してもらうように心がけています。
お家に傷を付けないよう、養生を貼るなどして丁寧に工事するよ!
あ、ちなみに工事する現場の人たちを、改めて紹介するね〜!
\ジャンっ!/

こちらがフォワードBHLの仲間だよ!って、間違った〜!
コレは社長のプライベート写真だ…えへっ♪
こちらが本当の仲間たちだよぉ。
\ジャンっ/
(2回目の)
きちんとリアルな仲間が紹介出来て良かった(笑)フォワードBHLの公式サイトでも施工事例が載っているので、是非、参考にしてみてくださいね!
お家のお困りごとは何でも聞いてねっ!
僕にお・ま・か・せ♪
・家族が高齢になり体が不自由になったのでバリアフリーにしたい方。 ・水周りの設備、古くなってきたな〜。ピカピカにしたいな〜。という方。 ・おうち全体のリフォームも相談してみたいな…という方。
毎日生活に使うものだからこそ、ぜひフォワードBHLに相談してみてくださいねー!
↓お問い合わせはコチラ↓

\お待ちしてまーすっ!/
YouTubeも始めたので是非、見てみてくださいね♪
▶フォワードBHLのチャンネル
Sponsored by フォワードBHL
※広告のお問い合わせはコチラから


















